生产破碎机的厂家提供时产300吨石灰岩生产线设备选型技术方案
导读:本文是上海恒源冶金设备有限公司向客户免费提供的时产300吨石灰岩破碎筛分生产线设备配置及破碎筛分设备的选型技术方案,建议购买设备的客户可以根据自己物料的硬度和产量,参考这个方案后在这个基础上稍作调整,以取得石料生产线的高效、节能和效率的最大化,希望对客户有所帮助。
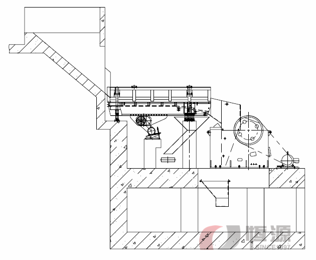
先来介绍一下本条石灰岩生产线工艺流程,流程图如下:
再来介绍一下石灰岩破碎生产线的工艺流程设计方案:
1、头破机组:
采用棒条喂料机ZSW590*110,为生产线提供均匀喂料。棒条喂料机的筛分功能,能够确保将原料中的土质杂质及碎料分离出来,然后通过皮带输送机输送后堆料处理,从而确保原料的品质,并达到原料最小损失量。
颚式破碎机采用PE870*1060型号,满足最大进料粒度670mm的破碎要求。经过棒条喂料机筛分的大料,进入颚式破碎机进行破碎作业。
棒条喂料机前方设计使用大型料仓,满足生产线持续大流量喂料需求。装载车可以直接向大型料斗卸料,也可以由装载机装载供料。
2、二破机组:
经过头破系统的处理,石料粒度降低到250mm以内,80%以上降低到200mm以内。然后,经由皮带输送机,输送到二破机组或者中间料仓。
中间料仓仅作为参考选型,可以不使用。本方案流程图中未采用中间料仓。
中间料仓具有一定储量的缓冲能力,当头破系统喂料量不充足的情况下,能够满足二破系统数小时的供料量,从而规避二破及后续系统的空载现象,进而实现生产效益的最大化。
中间料仓的缓冲料,通过料仓底部的悬挂喂料机GZG-1007,均匀输送到两台并联的大型反击破PF1315,完成第二级破碎作业。反击式破碎机PF1315具有强大的破碎能力,能够将石料粒度破碎到厘米级规格,并具备一定的粒型度。
两台并联的大型反击破,在设备下方共用一条倒料皮带输送机,将两台反击破的出料并联输送,搭接到后续的主皮带机,输送到下一级振动筛进行筛分。
3、筛分机组:
经过两级破碎之后,石料的粒度基本降低到厘米级别。我司生产线采用两台并联的大型圆振动筛4YK2460,将厘米级混合料进行一次筛分处理。
4、超高细破碎机组
采用超高细破碎机PX1414,实现高效率的细化破碎任务。高效细碎机采用了先进的分体式锤破结构,以及高频反击强制破碎技术,能够获得最高效率的细碎效果。
因此,细碎机组不仅可以将需求量很少的5~10mm中间料完全细化为5mm以下的机制砂,同时将大于30mm的返料完全消化。
高效细碎机PX1414采用了分体式高铬合金材质锤头,具备超强耐磨特性,在石灰岩破碎生产线应用中性能突出,获得了用户的高度评价,在贵州地区由大量应用案例,欢迎参观考察。
上海恒源企业简介
上海恒源是集冶金装备、矿山设备、机械铸造、机电工程的设计、制造、工程安装及国际贸易为一体的大型股份制企业集团,是一家老牌专业生产破碎机的厂家,集团公司的前身——上海恒源机械厂于1987就开始了矿山设备、重型装备的设计与制造,是国内规模比较大的矿山设备制造企业之一!
集团下属冶金设备公司制造的“山碎”牌系列矿山设备、选矿设备、冶金设备等处于国际同类产品先进水平,在国内外市场上具体极高的知名度,产品出口到60多个国家和地区!集团下属铸造公司、机电工程公司,铸造高铬合金、精密合金耐磨件、设计制造机电一体化控制设备,为国际知名矿山设备及国内顶尖装备制造商提供产品配套服务。 集团下属外贸公司负责集团公司产品的国际市场开拓、开展经济技术合作、提供砂石生产咨询、国外安装工程承包等业务!
目前,公司拥有各类技术和管理人员300余人,厂房占地面积六万多平米,各种大型加工设备100多台套,通过了ISO、CE等国际质量体系认证,获得了“中国矿山机械行业50强企业”,“上海市科技创新企业”,“AAA质量诚信单位”等一系列荣誉!
公司不仅有性能可靠的产品和经验丰富的售后服务团队,相信您需要的不仅仅是我们的产品,更是全方面的售后服务。恒源人重视的是精益求精的产品技术和质量,追求的是为您提供称心、省心、放心、安心的无忧服务。
我们将秉持“诚信、务实、创新、发展”的理念,与国内外用户一起合作双赢,共同发展!

先来介绍一下本条石灰岩生产线工艺流程,流程图如下:

再来介绍一下石灰岩破碎生产线的工艺流程设计方案:
1、头破机组:
采用棒条喂料机ZSW590*110,为生产线提供均匀喂料。棒条喂料机的筛分功能,能够确保将原料中的土质杂质及碎料分离出来,然后通过皮带输送机输送后堆料处理,从而确保原料的品质,并达到原料最小损失量。
颚式破碎机采用PE870*1060型号,满足最大进料粒度670mm的破碎要求。经过棒条喂料机筛分的大料,进入颚式破碎机进行破碎作业。

棒条喂料机前方设计使用大型料仓,满足生产线持续大流量喂料需求。装载车可以直接向大型料斗卸料,也可以由装载机装载供料。
2、二破机组:
经过头破系统的处理,石料粒度降低到250mm以内,80%以上降低到200mm以内。然后,经由皮带输送机,输送到二破机组或者中间料仓。
中间料仓仅作为参考选型,可以不使用。本方案流程图中未采用中间料仓。
中间料仓具有一定储量的缓冲能力,当头破系统喂料量不充足的情况下,能够满足二破系统数小时的供料量,从而规避二破及后续系统的空载现象,进而实现生产效益的最大化。
中间料仓的缓冲料,通过料仓底部的悬挂喂料机GZG-1007,均匀输送到两台并联的大型反击破PF1315,完成第二级破碎作业。反击式破碎机PF1315具有强大的破碎能力,能够将石料粒度破碎到厘米级规格,并具备一定的粒型度。

两台并联的大型反击破,在设备下方共用一条倒料皮带输送机,将两台反击破的出料并联输送,搭接到后续的主皮带机,输送到下一级振动筛进行筛分。
3、筛分机组:
经过两级破碎之后,石料的粒度基本降低到厘米级别。我司生产线采用两台并联的大型圆振动筛4YK2460,将厘米级混合料进行一次筛分处理。

- 振动筛4YK2460的四种出料,0~5mm、5~10mm、10~20mm、20~30mm分别堆料处理。
- 振动筛形成的返料进入高校细碎机PX-1414进行制砂处理;
- 5~30mm的成品料,既可以作为成品堆料处理,也可以通过粉料斗出口的转换,与大于30mm的返料一切输送到细碎机PX1414进行制砂;
- 因此,通过振动筛出料斗的双出口设计,可以调节不同成品料的比例;
- 该方案可以确保0~5mm机制砂产量达到每小时150吨左右。
4、超高细破碎机组
采用超高细破碎机PX1414,实现高效率的细化破碎任务。高效细碎机采用了先进的分体式锤破结构,以及高频反击强制破碎技术,能够获得最高效率的细碎效果。
因此,细碎机组不仅可以将需求量很少的5~10mm中间料完全细化为5mm以下的机制砂,同时将大于30mm的返料完全消化。
高效细碎机PX1414采用了分体式高铬合金材质锤头,具备超强耐磨特性,在石灰岩破碎生产线应用中性能突出,获得了用户的高度评价,在贵州地区由大量应用案例,欢迎参观考察。

上海恒源企业简介
上海恒源是集冶金装备、矿山设备、机械铸造、机电工程的设计、制造、工程安装及国际贸易为一体的大型股份制企业集团,是一家老牌专业生产破碎机的厂家,集团公司的前身——上海恒源机械厂于1987就开始了矿山设备、重型装备的设计与制造,是国内规模比较大的矿山设备制造企业之一!
集团下属冶金设备公司制造的“山碎”牌系列矿山设备、选矿设备、冶金设备等处于国际同类产品先进水平,在国内外市场上具体极高的知名度,产品出口到60多个国家和地区!集团下属铸造公司、机电工程公司,铸造高铬合金、精密合金耐磨件、设计制造机电一体化控制设备,为国际知名矿山设备及国内顶尖装备制造商提供产品配套服务。 集团下属外贸公司负责集团公司产品的国际市场开拓、开展经济技术合作、提供砂石生产咨询、国外安装工程承包等业务!
目前,公司拥有各类技术和管理人员300余人,厂房占地面积六万多平米,各种大型加工设备100多台套,通过了ISO、CE等国际质量体系认证,获得了“中国矿山机械行业50强企业”,“上海市科技创新企业”,“AAA质量诚信单位”等一系列荣誉!
公司不仅有性能可靠的产品和经验丰富的售后服务团队,相信您需要的不仅仅是我们的产品,更是全方面的售后服务。恒源人重视的是精益求精的产品技术和质量,追求的是为您提供称心、省心、放心、安心的无忧服务。
我们将秉持“诚信、务实、创新、发展”的理念,与国内外用户一起合作双赢,共同发展!
返回首页
砂金矿选矿工艺流程详解:从矿石到黄金的完整转化过程
2025-04-10
【颚破】颚式破碎机破碎腔结构以及对整机工作效率的影响
2019-09-01
反击式破碎机机器的技术优势
2019-05-12
【恒源官网】教你挑选破碎机锤头!提寿命!降
2019-07-10
上海恒源2020年元旦放假通知
2019-12-30
制砂机油箱故障问题及解决方案
2024-11-03
锤式破碎机的用途,是否可分类,组成,以及锤式破碎机的特点详解!
2019-08-25
制砂机生产线配置的秘密
2019-05-12
上海磨粉机厂家发货实况回顾2019年8月8日
2019-08-10
破碎机衬板的作用是什么
2023-05-03
浙江交投山年产1500万吨砂石骨料生产线加快建设
2019-09-17
行业分析|5G时代来了!无人矿山项目简析
2019-11-28
反击式破碎机板锤的固定方式有哪些
2024-09-10
石英岩开采加工全流程深度解析:从地质勘察到提纯工艺全攻略(附行业优化建议)
2025-08-18
【破碎机】长江采砂巡查过程中查获“隐形”采砂船1艘!非法采砂你一定要知道
2019-08-09
【恒源】移动破碎站,破碎、筛分、运输,全功能破碎站,一台轻松搞定
2019-07-22
洗砂机械-双螺旋洗砂机产品介绍
2020-03-14
雷蒙磨粉机常见故障分析及应对办法
2024-09-12
日产200吨镁砂破碎生产线设备选型和技术方案
2020-01-10
反击式破碎机性能优良,当之无愧成为高速公路建设好帮手
2019-08-29






